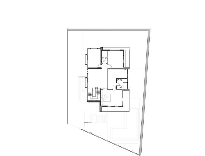
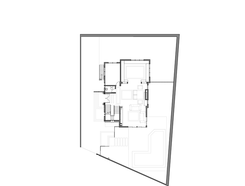
IC House

  • Architect: Mahmoud El Hajjaji
  • Client: Mr. Youness
  • Lieu: El Jadida / Morocco
  • Categorie: Architecture, Interior Design
  • Année: 2016

[ Details du projet ]

IC house is a modern style house located in El jadida which is one of most beautiful cities in Morocco known for its massive walls of hewn stone.
The geometry and materials of the house reflect the style and the image of the city. Furthermore, the house has been designed to accommodate the user´s needs in terms of space design, energy efficiency, and finally the psychological needs such as the quality of daylight, connection with nature, and relationship between interior and exterior.

This house embodies a modern and sustainable approach with an emphasis on clean lines and geometric volumes that combine form and function, minimizing the home's cooling load and enhancing its overall energy performance. The building’s layout is thoughtfully designed, featuring large glass windows that facilitate natural light penetration, reducing the need for artificial lighting and contributing to energy efficiency. The cantilevers and the vertical louvered elements serve as a smart bio-climatic feature, offering sun shading to control solar heat gain while also allowing for passive cooling through natural ventilation The open outdoor spaces and terraces encourage social interaction and a connection with nature, promoting a holistic living experience that's in harmony with sustainable principles. The landscaping design presents a sophisticated blend of formality and naturalism, The choice of native plant species that require less water and maintenance.

[ Construction pour IC House ]

Contact details

  • 671 woodcliffe private,
    Ottawa Ontario Canada
  • +1 (613) 890-8000 (Canada)
  • +212 661-167651 (Morocco)
  • info@moudconcept.com